Wir halten Ihnen als Bauträger im Chiemgau den Rücken frei. Melden Sie sich bei uns - wir freuen uns auf neue gemeinsame Projekte!
Besonders im Fokus: Nachhaltigkeit und Energieeffizienz. Die Häuser sind mit einer Luft/Wasser-Wärmepumpe ausgestattet, verfügen über moderne Wärmedämmziegel, dreifach verglaste Fenster und ein dezentrales Lüftungssystem mit Wärmerückgewinnung – all das sorgt für ein angenehmes Wohnklima bei gleichzeitig niedrigem Energieverbrauch.
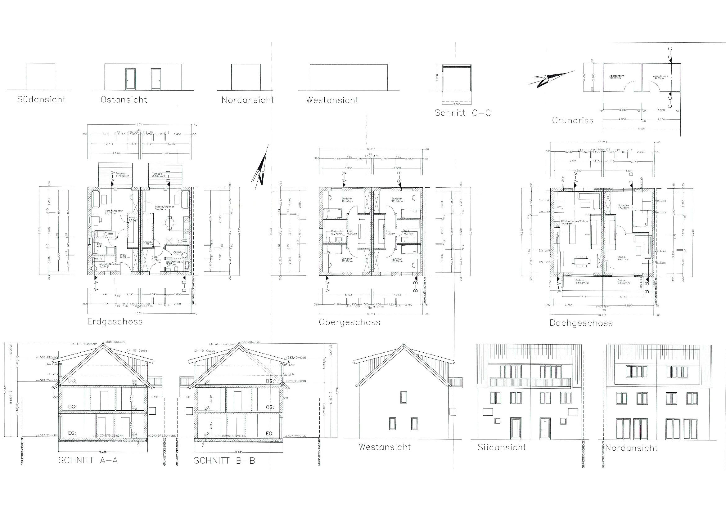
Die Dachstühle der beiden Häuser wurden traditionell errichtet, inklusive markanter Gauben, die dem Gebäude nicht nur Charakter verleihen, sondern auch für mehr Licht und Wohnraum im Dachgeschoss sorgen. Die Balkone zur Stadtseite hin bieten einen attraktiven Blick und unterstreichen die offene, städtische Wohnqualität.
Bei dem Innenausbau wurde viel Wert auf Flexibilität gelegt: Küchenanschlüsse in Erd- und Dachgeschoss, moderne Bäder auf zwei Ebenen und durchdachte Grundrisse ermöglichen verschiedene Wohnkonzepte.

Die Reihenhäuser in der Brunnwiese 21 sind ein gelungenes Projekt, das zeigt: auch in gewachsenen Stadtteilen lässt sich zukunftsfähiger Wohnraum schaffen – mit Respekt für die Vergangenheit und Blick nach vorn.
Die neuen Eigentümer fühlen sich sehr wohl in ihren modernen Eigenheimen in der Nähe zum Stadtplatz in Traunstein.
Hier finden Sie weitere spannende Beiträge rund um die Themen Design, Lifestyle und Trends